Customer Support
• Offline
Chat
;

Loading

Please wait

SandstoneOneStop.us is your one stop download Home stock plan service on Gabriola Island B.C. Canada - Owner/Operator Kim K. Kristiansen

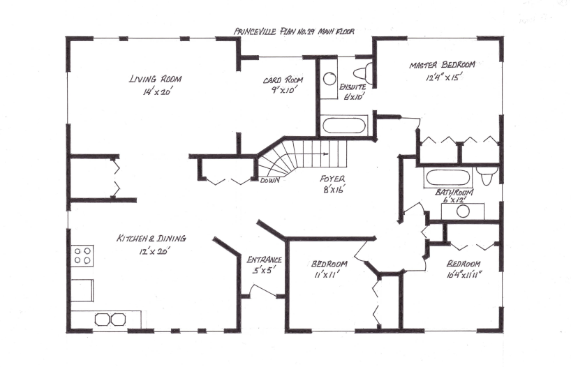
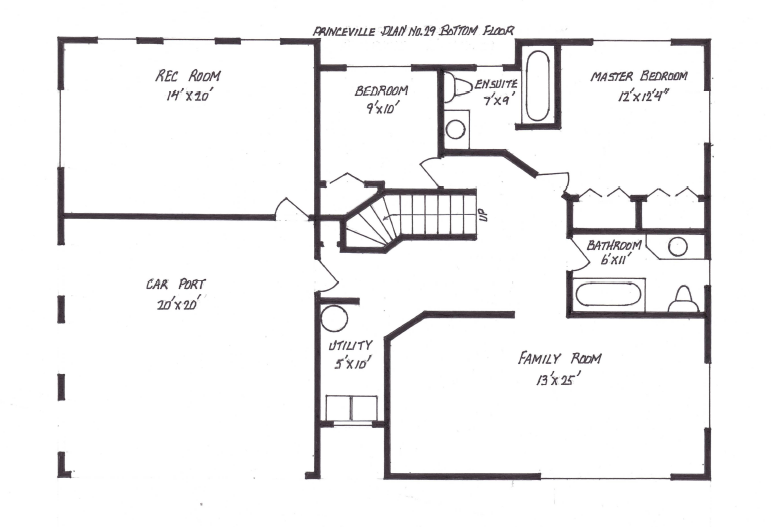
Princeville Plan 29: Split level home has everything. 2 Master bedrooms, 3 other bedrooms plus Family room and Rec room and adjoining car port. it is ideal for an ocean front location or any other setting.

Payment via PayPal. Plan can be downloaded after payment. Plan includes: Floor plans, floor plans showing bearing walls & lintels, door size & swing, closet type & size; elevations with window sizes; cross section views with roof framing; and foundation plans.

Email: Kim@SandstoneConceptus.com Address: Kim Kristiansen; P.O. Box 7, Gabriola, BC, Canada, V0R 1X0 Telephone: 250-247-9188

Write a Review

Discover More

View More
Location
Live Chat
Ask Us
Call
Plans