Customer Support
• Offline
Chat
;

Loading

Please wait

SandstoneConceptus is your one stop download Home stock plan service on Gabriola Island B.C. Canada - Owner/Operator Kim K. Kristiansen.

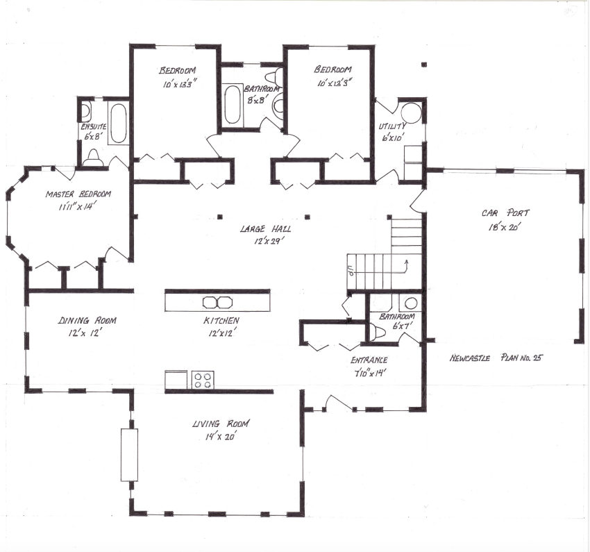
Newcastle - Plan 25: This spacious 2 level home will give you an airy feel throughout, it has 5 bedrooms and 5 bathrooms and adjoining car port. Openness and privacy exist side by side here, ideal for a large family.

Payment via PayPal. Plan can be downloaded after payment. Plan includes: Floor plans, floor plans showing bearing walls & lintels, door size & swing, closet type & size; elevations with window sizes; cross section views with roof framing; and foundation plans.

Email: Kim@SandstoneConceptus.com Address: Kim Kristiansen; P.O. Box 7, Gabriola, BC, Canada, V0R 1X0 Telephone: 250-247-9188

Write a Review

Discover More

View More
Location
Live Chat
Ask Us
Call
Plans