Customer Support
• Offline
Chat
;

Loading

Please wait

SandstoneConceptus is your one stop download Home stock plan service on Gabriola Island B.C. Canada - Owner/Operator Kim K. Kristiansen

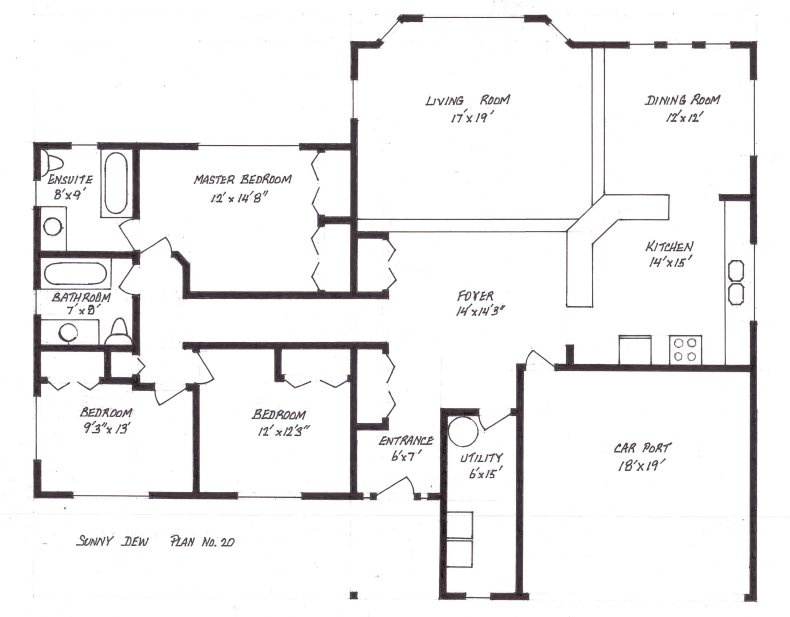
Sunny Dew - Plan 20, 3 bedroom Rancher that has a welcoming feel to it. Foyer, kitchen, dining room and sunken living room all openly connected. Has attached carport.

Payment via PayPal. Plan can be downloaded after payment. Plan includes: Floor plans, floor plans showing bearing walls & lintels, door size & swing, closet type & size; elevations with window sizes; cross section views with roof framing; and foundation plans.

Email: Kim@SandstoneConceptus.com Address: Kim Kristiansen; P.O. Box 7, Gabriola, BC, Canada, V0R 1X0 Telephone: 250-247-9188

Write a Review

Discover More

View More
Location
Live Chat
Ask Us
Call
Plans